Property Details

1706-95 Oneida Crescent, Richmond Hill

$469,990
SOLD Login to see the price

Description

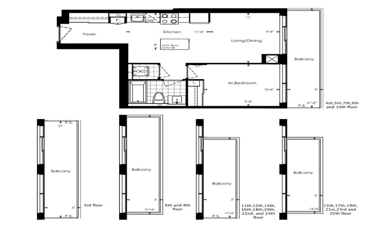
Welcome To Era Condominiums, The Dawn Of A New Era In Richmond Hill. The Epitome Of Sophisticated Urban Living, 2 Soaring Towers Rise Over The Majestic Podium Overlooking Spectacular Views Of The Neighbourhood. Era Is Part Of Pemberton's Iconic Master-Planned Community At Yonge Street And Highway 7, Just Steps From Everything You Love. Unit Feature 1 Bed, 1 Bath W/ Balcony. East Exposure. Parking & Locker Included.

Additional Details

  • Unit No.
    1706
  • Community
    Langstaff
  • Approx Sq Ft
    500-599
  • Building Type
    Condo Apartment
  • Building Style
    Apartment
  • Taxes
    $2234.38 (2024)
  • Garage Space
    1
  • Garage Type
    Underground
  • Parking Space
    1
  • Air Conditioning
    Central Air
  • Heating Type
    Forced Air
  • Kitchen
    1
  • Basement
    None
  • Pets Permitted
  • Condo Inclusives
    Heat Included, Hydro Included, Common Elem. Included , Cable TV Includeded, Condo Tax Included, Building Insurance Included, Water Included, CAC Included, Parking Included
  • Listing Brokerage
    HARLOWE REALTY CORPORATION

Receive an Instant Property Analysis generated by state of the art Artificial Intelligence.

Comparable Sold Properties and similar active properties sorted in a chart, allowing you to analyze the dynamics of this property.

Get Free Report

Features

Transaction History

List Date Transaction List Price Sold/Leased Price DOM Status Transaction Date

Location

95 Oneida Crescent , Richmond Hill, ON L4B 0H5

Nearby Schools

Source: Schools information and student demographics
For further information and school ranking visit Fraser Institution and EQAO.

  Green Yellow Orange Red
Average student achievements (out of 100%) 100-76 75-60 60-40 40-0

Share this Property

Share

Listing Brokerage

  • HARLOWE REALTY CORPORATION

By using our site, you agree to our Terms of User and Privacy Policy .
All information displayed is believed to be accurate but is not guaranteed and should be independently verified. No warranties or representations are made of any kind.

Listing Data is provided courtesy of Toronto Real Estate Boards

Disclaimer: The property is not necessarily in the boundary of the schools shown above. This map indicates the closest primary and secondary schools that have been rated by the Fraser Institute. There may be other, closer schools available that are not rated by the Fraser Institute, or the property can be in the boundary of farther schools that are not shown on this map. This tool is designed to provide the viewer an overview of the ratings of nearby public schools, and does not suggest association to school boundaries. To view all schools and boundaries please visit the respective district school board’s website.

M
Mitra Naeeni
Mitra Naeeni
Do you have questions?
Call or text today, we are here to help!